家HOME,是一个住所,亦是一种联结与陪伴。时光流转,我们迎接生命的每个阶段时,也会感受变化之于家庭的美好。因此,家在不同阶段承载着不同的功能与作用。

【示意图】
对于进阶中的家庭来说:从二人世界到三口之家、三代同堂的跨越,每个阶段中不仅要有情感交流,更需要面对独立居住功能的要求,聚而不分的三室便是最舒适的礼遇,承接着每个人对空间功能的需求,鑫江·花漾里,百fen百深入探究人本空间焕新升级·百fen百空间·功能三居户型,礼献幸福人生。

【示意图】
花漾三维HOME家
建面约92㎡功能三居H3户型 盛妆绽放
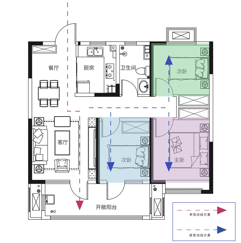
【户型图】
百fen百分享 | 餐客一体 承载团圆时光
好的空间可以陪伴全家人一起成长,让家庭生活更加融洽和亲密,花漾里H3户型餐客一体的双厅设计,为家人营造了多维社交空间,三餐共叙,一桌热气腾腾的饭菜,全家敞怀举箸,分享日常趣事,朗阔的客厅空间承载更多温馨生活场景,休闲谈天,多人亲友聚会不拥挤。

【H3户型样板间实景图】
百fen百动线 | L型厨房 美食&互动
为家人烹饪美食,满足一家人的味蕾。方正空间搭配L型布局,空间实用,黄金动线,流畅操作,半开放式吧台,打造一个便捷早餐、品味下午茶的临时场所,厨房空间早已成为一条拉近夫妻感情距离的隐形纽带。
【H3户型样板间实景图】
百fen百光线 | 双跨阳台 多元布局
著名建筑师路易斯·康说:“设计空间就是设计光线” ,花漾里双跨阳台,连接客厅与儿童房,创造良好的采光&通风条件,双面动线,为孩子营造一个玩趣的活动空间。超尺度阳台,除了晾晒、瞰景等常规功能外,还打造了儿童沐光阅读区,多功能空间布局,匹配家庭每位成员的生活渴望。
【H3户型样板间实景图】
百fen百舒居 | 舒朗主卧 浪漫飘窗&衣饰区
属于主人房的私密浪漫中,空间是奇妙的催化剂,南侧宽景飘窗,升级视觉维度与空间质感,午后小憩、阅读瞰景,自此就有了专属的一席,女主人专属衣饰区,满足自我的时尚与仓储,随心而居,时光静好,勾勒理想生活的模样。
【H3户型样板间实景图】
鑫江·花漾里
花漾三维HOME家所打造的理想生活空间,就是要以更强大的包容性,更人性的适配度,实现人生不同阶段、全家庭成员对空间的需求,舒居为标尺,品质为核心,灵动为成长性,从尺度到功能再到细节周到考量,升维人居标准。
【示意图】
项目地址:青岛市城阳区银河路666号
电话:8773 8888